产品中心 您当前所在位置:网站首页 > 产品中心

 装配式预应力金属复合耐腐水池
 双弧肋超刚度大模块抗浮泵站
 巧克力箱泵一体
 BDF钢塑复合水箱
 不锈钢水箱模具
 箱泵一体化消防给水设备
 地埋式箱泵一体化消防泵站
 一体化污水提升泵站
 聚氨酯保温模块
 干式电机长轴泵(消防)
 管网叠压(无负压)供水设备
 焊接组合式不锈钢水箱
 装配式不锈钢水箱
 玻璃钢雨水收集池
 卧式玻璃钢化粪池
一体化污水提升泵站

预制泵站应用优势:
   生活污水已经慢慢的影响我们的生产生活,对于一些条件差的环境,污水的处理非常困难,因长期的滞留对于整体环境的影响还是很大的,富亚纤维缠绕预製泵站的出现,针对污水的处理进行了有利的发挥,这套装置主要使用在离主管道低的环境,或是远离主管道的一些地区,利用它的提升装置,自动的将水位送到特定污水处理厂处理,不但方便了操作过程化,极大的利于环境的改变。
  预製泵站主要使用在市政工业地下室排水、地铁排水、生活区、工厂等低於地面的一种污水处理装置,因为这些场所的污水长期存留在一个地方,很容易引起环境的污染,严重的还影响人类的正常生活。利用好这套装置,可以大大改善这种污水困扰的问题,缓解各种环境压力,提高整体的生活水準。
  预製泵站的特点也非常多,它的结构很小,所以佔用的面积不大,还可以进行隐蔽安装,不影响周围环境的美观,安全也比较容易保障,该装置的抗腐蚀能力也很强,在应用过程中可以有效的提高使用寿命,基本上不用进行日常的维护,故障率很低。

一体化污水提升泵站

控制系统普通功能:
  1、水泵交替运行(高水位报警时,多台泵同时启动,低水位报警时,水泵自动恢复交替运行)。
  2、水泵具有延时启动和停止功能,高低水位根据实际流量和规定的启动次数(≤15次/小时)而设定。
  3、搅拌器或反冲洗阀的控制。
  4、启动导向模拟面板,可选、可调和屏蔽状态。

控制系统多功能型:
  1、通过容积计算进水流量和出水流量。
  2、SCADA软件通讯平台和组态技术。
  3、管网综合监控工程服务技术。
  4、监控终端RTU。
  5、每日清空功能、预制堵塞功能并冲洗/反转。
  6、连续检测、出水流量数据采集、溢流记录等。
  7、多组水泵控制,并防抱死功能和排除浮沫。

产品=一体化污水提升泵站-污水提升泵站(预制泵站)内图02.jpg

  8、技能智能远程监控检测系统。泵站确保了最低的能源消耗,对水泵功率进行连续检测,并保证了水泵和管路得到及时维护。

控制模式:
  1、现场手动控制方式。  2、远程手动控制方式。  3、远程自动控制方式。
  4、专用控制器有多个输入/输出接口来连接额外的输入型号或输出型号,通过显示屏简单直观反映实时运行情况。
  5、集中管理的数据库和网络服务器进行数据收集,完全实现了互联网来监测和管理的目标。
富亚预制泵站的选型:
在正确选型前,我们必须知道以下信息:
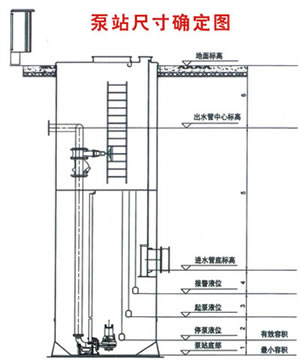
▶ 尺寸:a.设计流量、扬程;b.所需配备的水泵数量,包括工作泵和备用泵;c.地面标高、进水管/出水管标高;d.进水管/出水管管径
▶ 应用:应用领域--市政工程、工业、建筑或其他;室内/室外、地面上或地面下等
▶ 结构形式:模块化湿井泵站、模块化集成式泵站、以及完全客户定制的泵站
▶ 内部管路的材质:304不锈钢(标准)、316、PVC
▶ 液位传感器:压力液位传感器(标准)、浮子开关、超声液位传感器等等
▶ 可选项:蓝式格栅、粉碎机、简易除臭装置
▶ 控制系统:现场自动液位控制、远程控制

产品=一体化污水提升泵站-污水提升泵站(预制泵站)泵站尺寸确定图.jpg
产品=一体化污水提升泵站-污水提升泵站(预制泵站)内图03.jpg

可选项及附件:
  富亚一体化预製泵站有配套的附件和客户化方案可供选择,以下列出了一些可选项,欲知更多详情,请联系富亚公司
附件:通风扇、加热器、干式安装泵站排水泵、变频器、流量计、提升装置等。

产品=一体化污水提升泵站-污水提升泵站(预制泵站)附件.jpg

设计依据:
  1、纤维缠绕玻璃钢筒体依照GB/21238-2007标准进行设计;
  2、泵站的安装依据ASTMD3839-89玻璃纤维制品地下埋设标准进行;
  3、基础结构由公司按规范设计并预制;
  4、泵站内的配置包括泵的数量由需方自选并提出相关要求。

泵站参数:

名称

泵站直径

标准高度

入流流量

水泵功率

参数

1200-3800mm

最大12m

最大500L/s

最大160kw

注:泵站尺寸可根据实际工程需要量身设计制造。

版权所有:新疆富亚新能源科技有限公司
地址:新疆乌鲁木齐市(第十二师)经济技术开发区(头屯河区)三坪农场东坪大道7187号新疆陆港国际机电产业园3#厂房203室 中国(新疆)自由贸易试验区
服务热线:400-995-1668  电话:13912538878 13815548188 13639927190  联系人:徐经理、孙经理  邮箱:2528594966@qq.com  网站管理